FABER Sada EVJ FLAT R1

FABER Sada EVJ FLAT R1

název: Sada EVJ FLAT R1
hmotnost: 7.5 kg
provedení: pozink
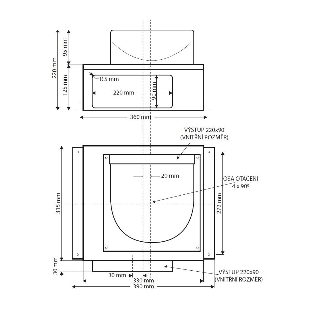
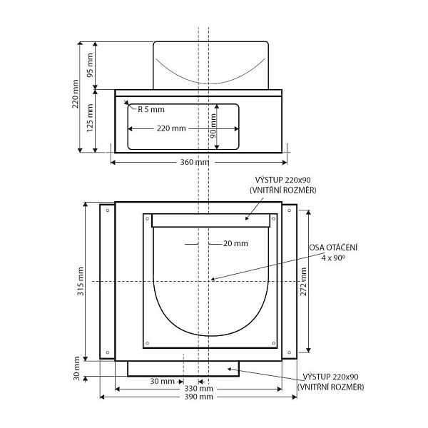
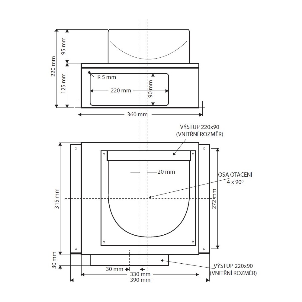
výstupní hrdlo: 150 mm
výrobce: ---
Cena: 5 391 Kč
bez DPH: 4 455 Kč
Dostupnost: Není skladem ? Běžně skladem do 3-5 dnů

Sada EVJ FLAT je schránka pro externí umístění ventilační jednotky. U všech stropních digestoří s plochým (radiálním) motorem FABER označených ikonou REMOTE BLOWER lze pomocí této sady upravit standardní digestoř na digestoř bezmotorovou. Motor, který byl původně součástí digestoře, přemístíme do nového boxu a vytvoříme tak externí ventilační jednotku (EVJ), kterou můžete instalovat mimo kuchyni.

Tato úprava je provedena u distributora před expedicí. Součástí dodávky je propojovací kabel s konektory v délce dle požadavku zákazníka a kotevní materiál k upevnění EVJ. Vše je připraveno pro snadnou instalaci, k připojení EVJ stačí spojit konektor propojovacího kabelu s konektorem v digestoři.

Přemístění ventilační jednotky nevyžaduje žádný zásah do konstrukce odsavače a v případě potřeby lze výrobek kdykoliv vrátit do původního stavu. Beze změny zůstává také originální spojení motor – elektronika – ovládací panel, takže všechny funkce zůstávají zachovány. Rovněž hodnota sacího výkonu zůstává nezměněna, výrazně se však sníží hlučnost.

EVJ FLAT musí být umístěna vždy uvnitř domu, aby byla chráněna před povětrnostními vlivy.

Elektrické připojení k síti je v místě digestoře. Při stavební přípravě je třeba připravit průchodky o průměru min. 45 mm pro protažení spojovacího kabelu s konektorem.

EVJ doporučujeme instalovat co nejdále od digestoře. Je vhodné použít tlumič hluku, minimalizuje se tím zpětné pronikání hluku potrubím, při maximálním výkonu až o 13 dB(A).

Cena zahrnuje propojovací kabel v délce 4 metry. Za každý další metr propojovacího kabelu se cena navyšuje o 100 Kč.

Jedná se o zakázkovou úpravu, proto je třeba počítat s delší dobou dodání - 10-15 pracovních dnů.

NELZE OBJEDNAT SAMOSTATNĚ, POUZE S ODSAVAČEM FABER JAKO KOMPLET!!!